Murrumbateman Public School
MURRUMBATEMAN / NSW
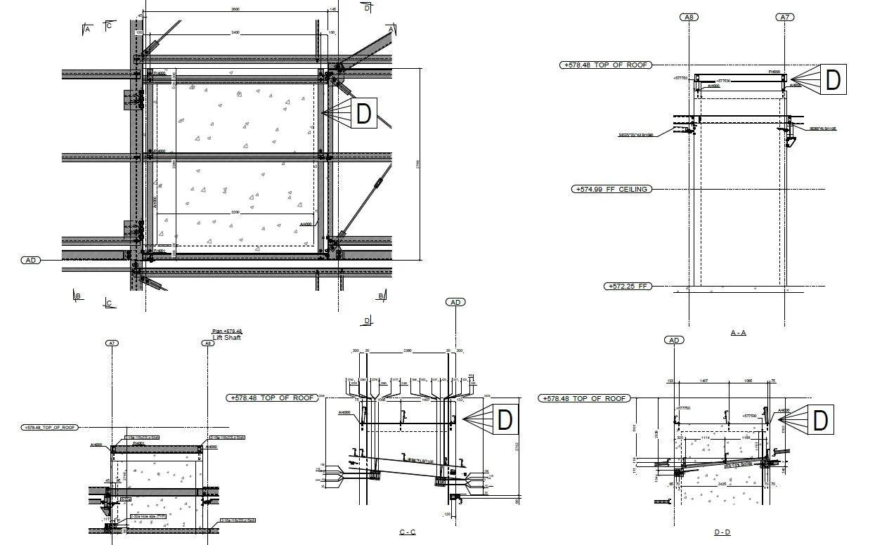
The team at ModFab Steel worked created detailed and complex 3D models for a primary school block at Murrumbateman Public School.
MURRUMBATEMAN / NSW
The team at ModFab Steel worked created detailed and complex 3D models for a primary school block at Murrumbateman Public School.